Kuźnia Raciborska. Ruszają remonty budynków miejskich

W Kuźni Raciborskiej lata 2021 i 2022 będą czasem wielkich remontów. Poddane nim zostaną budynek przy Jagodowej oraz budynki ZGKiM i Urzędu Miasta.
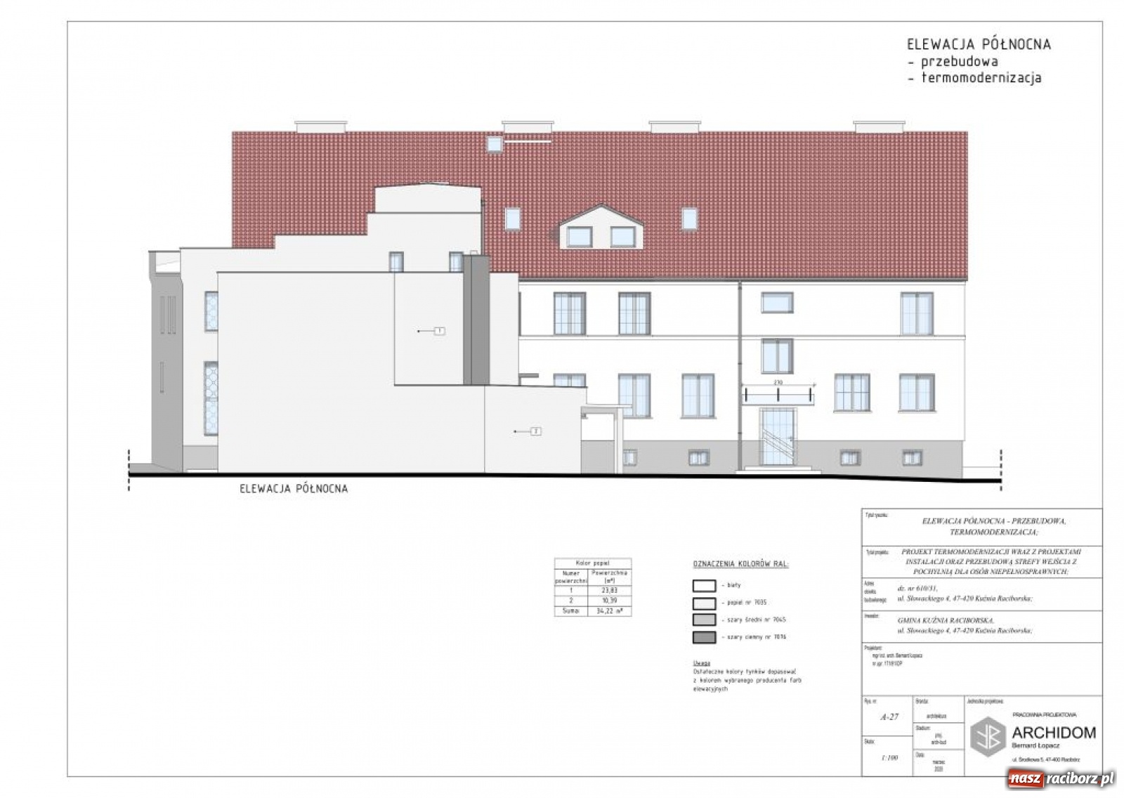
Prace remontowe w budynku ZGKiM przy ul. Słowackiego 6 rozpoczną się już od połowy kwietnia br., a planowane zakończenie prac to koniec roku 2021. W pierwszej kolejności zostanie wyburzony budynek starej części by móc przystąpić do prac elewacyjnych. W ostatnim etapie zaczną się prace wewnątrz budynku.
Na czas remontu pracownicy biurowi zostaną przeniesieni do budynku na ul. Jagodowej, pracownicy fizyczni na teren GPWiK przy ul. Klasztornej, a Punkt Obsługi Mieszkańca wraz z Punktem Kasowym wrócą na czas remontu do budynku Urzędu Miejskiego.
W czerwcu 2021 r. mają zakończyć się prace termomodernizacyjne budynku przy ul. Jagodowej.
Remont budynku Urzędu Miejskiego (roboty zewnętrzne) planowany jest na koniec 2021 roku, a w roku 2022 ruszą prace wewnątrz. Na czas remontu wewnątrz budynku, pracownicy Urzędu Miejskiego zostaną przeniesieni do budynku na ul. Jagodowej. Po powrocie pracowników Urzędu z ul. Jagodowej (końcówka roku 2022) nastąpi remont pomieszczeń przy ul. Jagodowej, gdzie zostanie przeniesiona siedziba MOPS.
Po zakończeniu remontów zostanie ogłoszony konkurs na mural, który powstanie na wolnej ścianie budynku ZGKiM (po wyburzeniu starej części).

























![Pierwsza gala sportowa Unii Racibórz w RCK. Nagrody, podziękowania i wzruszające pożegnania [FOTO i WIDEO] Pierwsza gala sportowa Unii Racibórz w RCK. Nagrody, podziękowania i wzruszające pożegnania [FOTO i WIDEO] - Serwis informacyjny z Raciborza - naszraciborz.pl](photos/_thumbs/mini_1766091358gala-unia-.jpg)




































Komentarze (0)
Aby dodać komentarz musisz być zalogowany