Władze powiatu inwestują w komfort swojej pracy. Powstanie czwarta sala obrad

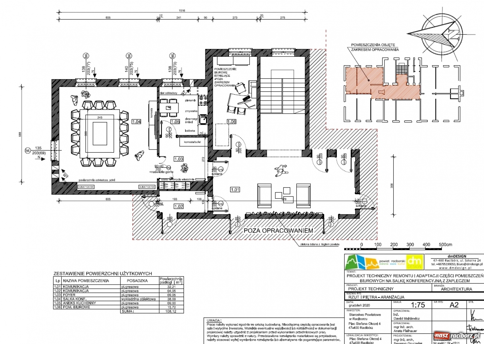
Około 130 tys. zł ma kosztować nowa salka konferencyjna w tzw. małym budynku Starostwa Powiatowego na zapleczu głównego gmachu, gdzie odbywa się obsługa klientów. Będzie to już czwarte pomieszczenie do konferowania w tym obiekcie.
Na nową salkę zostaną zagospodarowane pomieszczenia użytkowane dotąd przez pracowników zlikwidowanego referatu promocji i rozwoju. Znajdują się na piętrze tzw. małego gmachu, gdzie dawniej funkcjonowała delegatura kuratorium. Teraz są tu gabinety starosty, wicestarosty, etatowej członkini zarządu oraz sekretarza i podległych mu urzędników. Obsługa petentów, m.in. referatu komunikacji, odbywa się w dużym gmachu dawnego klasztoru sercanek.
Co ciekawe, będzie to już czwarte pomieszczenie do konferowania w tym obiekcie - duża, klimatyzowana sala obrad Rady Powiatu znajduje się na parterze, w sąsiedztwie jest mniejsza sala, wykorzystywana zwykle na posiedzenia komisji, a na piętrze kolejna salka, tym razem na obrady zarządu, tuż przy gabinecie starosty, z małym zapleczem na przygotowanie ciepłych napojów. Czwarta będzie jednak najbardziej komfortowa. Przewidziano kuchnię i przedpokój kawowy.
Nie wiadomo jednak, czy zaplanowane 130 tys. zł wystarczy. Postępowanie mające wyłonić wykonawcę unieważniono. Nie złożono żadnej oferty.
Jak tłumaczy starosta Grzegorz Swoboda, w nowym pomieszczeniu będzie stale obradować zarząd oraz komisje Rady. Do tego obsłuży inne spotkania w szerszym gremium. - Było to już dawno planowane - dodaje starosta, zapewniając, że zarząd dba nie tylko o siebie i radnych, ale i resztę urzędników. - W całym starostwie i placówkach podległych malujemy, wymieniamy oświetlenie na nowoczesne LED, dostosowujemy meble, biurka, wymieniamy podłogi, fotele biurowe żeby poprawić komfort pracy pracowników - słyszymy. Nie było to robione – jak dodaje starosta - od 20 lat, czyli od chwili powstania powiatów. W planie także kompleksowa przebudowa komunikacji i malowanie wnętrz.
Komentarz
Na sesjach Rady Powiatu co rusz słychać narzekania włodarzy, że subwencja oświatowa jest za mała, przez co wydatki rzeczowe szkół ograniczane są do minimum. Długa jest lista życzeń co do remontów dróg i chodników przy drogach powiatowych. Nie brakuje barier architektonicznych dla niepełnosprawnych. W gminach utarło się przekonanie, że starostwo jest biedne i jak coś trzeba zrobić, to muszą się dołożyć. Usunięcie usterek na zamku wyceniono na 300 tys. zł. Od kwietnia 2020 r. „w związku z negatywnymi skutkami gospodarczymi COVID-19 powodującymi zagrożenie utrzymania płynności finansowej Powiatu Raciborskiego” nie ma stypendiów dla sportowców. Dla klubów nieraz są tylko puchary na nagrody, bo ponoć w budżecie powiatu się nie przelewa. Z lewa i prawa słychać głosy poparcia dla PWSZ, ale wystarczy obejrzeć zaplecze uczelni, by przekonać się co z tego wynika. Nie słychać, by Starostwo angażowało się w powiatowy program renowacji zabytków. Niedawne ministerialne dotacje dla Krowiarek czy Rzuchowa to 250 tys. zł. Pięć kolejnych wniosków z parafii naszego powiatu nie doczekało się wsparcia, w tym raciborska fara, której wierni składają się na wartą ponad 2 mln zł naprawę dachu świątyni WNMP, by ładnie wyglądał m.in. w powiatowych folderach i filmach promocyjnych. Może zatem dziwić, że władze powiatu, zdominowane przez PO i klub Razem dla Ziemi Raciborskiej, przekazują 130 tys. zł na czwartą już salę do obradowania. Czy dyskutowanie z zapleczem kuchennym i przedpokojem kawowym w tle sprawią, że zarząd powiatu nagle znajdzie pomysł jak realnie pomóc tym, dla których te 130 tys. zł byłyby naprawdę dużym wsparciem?
Duża sala obrad na parterze, z klimatyzacją i nagłośnieniem - obraduje tu Rada Powiatu, komisje, a także odbywają się spotkania np. sztabów kryzysowych

Mała sala obrad na parterze - odbywają się tu zwykle posiedzenia komisji Rady Powiatu

Salka do obrad przy gabinecie starosty - obraduje tu zwykle zarząd (5 osób), a także - w poprzedniej kadencji - organizowane były konferencje prasowe (fot. arch.)

Wizualizacja czwartej sali obrad, w miejscu zlikwidowanego referatu - mają tu obradować zarząd, komisje a także odbywać się inne spotkania w węższym gronie, będzie tu zaplecze kuchenne i przedpokój kawowy



























































Komentarze (0)
Dodaj komentarz