Basen pod Oborą wymaga remontu, nowy ciągle w planach [WIZUALIZACJE]
![Basen pod Oborą wymaga remontu, nowy ciągle w planach [WIZUALIZACJE] Basen pod Oborą wymaga remontu, nowy ciągle w planach [WIZUALIZACJE] - Serwis informacyjny z Raciborza - naszraciborz.pl](img/archiwum-mini.jpg)
Od lat mówi się w Raciborzu o nowym, otwartym kąpielisku przy Zamkowej. Z mówienia nic na razie nie wynika, a miasto stoi przed koniecznością remontu niecki przy Markowickiej.
Temat otwartego kąpieliska ożył niedawno w związku z dyskusją o lokalizacji boiska ze sztuczną nawierzchnią. Opozycyjne kluby Razem dla Raciborza oraz Radnych Niezależnych M. Fity wpisały do budżetu inwestycję przy Zamkowej. Lokują ją na lekkim wzniesieniu za H2Ostróg, twierdząc, że nie zabierze to rezerwy pod rozbudowę aquaparku. Innego zdania jest prezydent, chcący boiska na Srebrnej.
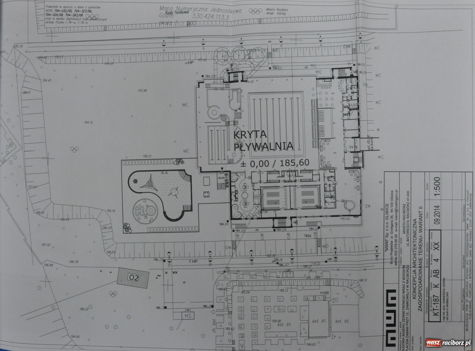
Plan powiększenia pływalni istnieje od 2014 r. Z rok na rok władze poprzedniej kadencji obiecywały wpisanie zadania do programu miejskich inwestycji, ale na zapowiedziach się kończyło. Obecny prezydent zaczął od wartej ponad milion złotych modernizacji instalacji uzdatniania wody w H2Ostróg, zapewniając, że będzie zdolna obsłużyć planowane zewnętrzne kąpielisko. Kiedy powstanie? Deklaracje co do daty nie padły, ale chęci są. Przed basenem ma powstać lodowisko. Miasto dostało na to 4 mln zł rządowej dotacji.
Tymczasem remontu wymaga niecka basenu przy Markowickiej. Obiekt, który zastąpił uszkodzone w czasie powodzi z 1997 r. kąpielisko przy Bema, ma już swoje lata. Co roku pracownicy OSiR-u dzielnie usuwają usterki i odpadające płytki. W końcu jednak trzeba będzie załatwić sprawę kompleksowo. Jak zapowiada prezydent, stanie się to z końcem tego sezonu albo z początkiem przyszłego roku.
Basen pod Oborą – co słychać od lat - jest jednak za mały jak na blisko 50-tysięczne miasto i zbyt oddalony od centrum. Raciborzanie szturmują więc okoliczne ośrodki, m.in. w Szymocicach, Rybniku (Ruda) czy Tworkowie, oraz baseny w przygranicznych miejscowościach w Czechach.
Mówiło się także o zaadaptowaniu na kąpielisko jednego z wyrobisk pożwirowych na Ostrogu. Plany nigdy się nie ziściły, podobnie jak przebudowa całego terenu na słynne Acapulco. Dziś aktualne są plany sprzedaży tego terenu.
W galerii projekty firmy MWM Gliwice, która przygotowała także dokumentację dla budowy aquaparku oraz wygrała przetarg na modernizację instalacji uzdatniania wody (źródło UM Racibórz)
![Zdjęcie w galerii na portalu naszraciborz.pl: Basen pod Oborą wymaga remontu, nowy ciągle w planach [WIZUALIZACJE] wiadomości z regionu](galleries/37335/1618210582b7-.jpg)
![Zdjęcie w galerii na portalu naszraciborz.pl: Basen pod Oborą wymaga remontu, nowy ciągle w planach [WIZUALIZACJE] wiadomości z regionu](galleries/37335/1618210592b8-.jpg)
![Zdjęcie w galerii na portalu naszraciborz.pl: Basen pod Oborą wymaga remontu, nowy ciągle w planach [WIZUALIZACJE] wiadomości z regionu](galleries/37335/1618210605b6-.jpg)
![Zdjęcie w galerii na portalu naszraciborz.pl: Basen pod Oborą wymaga remontu, nowy ciągle w planach [WIZUALIZACJE] wiadomości z regionu](galleries/37335/1618210618b5-.jpg)
![Zdjęcie w galerii na portalu naszraciborz.pl: Basen pod Oborą wymaga remontu, nowy ciągle w planach [WIZUALIZACJE] wiadomości z regionu](galleries/37335/1618210630b4-.jpg)
![Zdjęcie w galerii na portalu naszraciborz.pl: Basen pod Oborą wymaga remontu, nowy ciągle w planach [WIZUALIZACJE] wiadomości z regionu](galleries/37335/1618210643b3-.jpg)
![Zdjęcie w galerii na portalu naszraciborz.pl: Basen pod Oborą wymaga remontu, nowy ciągle w planach [WIZUALIZACJE] wiadomości z regionu](galleries/37335/1618210656b2-.jpg)
![Zdjęcie w galerii na portalu naszraciborz.pl: Basen pod Oborą wymaga remontu, nowy ciągle w planach [WIZUALIZACJE] wiadomości z regionu](galleries/37335/1618210669b1-.jpg)








![Ośrodek Pomocy Społecznej - wolne stanowisko urzędnicze [NABÓR] Ośrodek Pomocy Społecznej - wolne stanowisko urzędnicze [NABÓR] - Serwis informacyjny z Raciborza - naszraciborz.pl](photos/_thumbs/mini_158866524795606555_3737148336359233_3231687947908546560_n-.jpg)










































Komentarze (0)
Dodaj komentarz