Przy Siwonia ma powstać nowe osiedle domów wielorodzinnych [FOTO]
![Przy Siwonia ma powstać nowe osiedle domów wielorodzinnych [FOTO] Przy Siwonia ma powstać nowe osiedle domów wielorodzinnych [FOTO] - Serwis informacyjny z Raciborza - naszraciborz.pl](img/archiwum-mini.jpg)
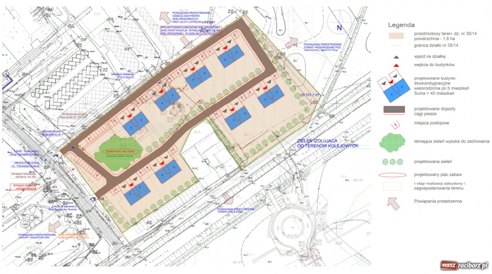
Chodzi o teren po dawnej ciepłowni na Ostrogu pomiędzy garażami przy Siwonia a ulicą Nad Koleją. Właścicielem terenu jest PGNiG TERMIKA Energetyka Przemysłowa SA.
Do rąk radnych wpłynął już projekt uchwały w sprawie ustalenia lokalizacji inwestycji mieszkaniowej pod nazwą „Budowa zespołu budynków wielorodzinnych o podstawowej funkcji mieszkaniowej, o łącznej liczbie 40 lokali, przy ul. Franciszka Siwonia w Raciborzu (działka nr 35/14, obręb Ostróg)”.
W dniu 14.08.2019 r. do Prezydenta Miasta Racibórz wpłynął wniosek (uzupełniony w dniu 20.08.2019 r.) firmy PGNiG TERMIKA Energetyka Przemysłowa SA o ustalenie lokalizacji inwestycji mieszkaniowej zgodnie z ustawą z dnia 5 lipca 2018 r. o ułatwieniach w przygotowywaniu i realizacji inwestycji mieszkaniowych oraz inwestycji towarzyszących, na działce nr 35/14, k.m. 25, obręb Ostróg w Raciborzu - czytamy w uzasadnieniu. PGNiG to właściciel terenu.
W miejscu tym przewidziano:
1) powierzchnię użytkową mieszkań:
a) minimalną powierzchnię – 27,50 m²,
b) maksymalną powierzchnię – 71,20 m²,
2) liczbę mieszkań:
a) minimalną liczbę mieszkań – 32,
b) maksymalną liczbę mieszkań – 40.
Uzyskane opinie i uzgodnienia - jak informuje prezydent - były pozytywne, za wyjątkiem dwóch opinii (Gminnej Komisji Urbanistyczno-Architektonicznej oraz Śląskiego Państwowego Wojewódzkiego Inspektora Sanitarnego):
- w opinii z dnia 12.09.2019 r. Gminna Komisja Urbanistyczno-Architektoniczna zaopiniowała wniosek o ustalenie przedmiotowej inwestycji m.in. z zastrzeżeniem, że realizacja zabudowy mieszkaniowej na przedmiotowym terenie spowoduje obowiązek podjęcia działań na rzecz ochrony środowiska przed hałasem; obowiązek podjęcia działań na rzecz ochrony środowiska przed hałasem dotyczył będzie istniejącego zakładu oraz ewentualnych nowych inwestycji mogących powstać w ramach terenu, w obowiązującym miejscowym planie zagospodarowania przestrzennego oznaczonych symbolami K3P i K6P.
- pismem z dnia 13.09.2019 r. Śląski Państwowy Wojewódzki Inspektor Sanitarny, opiniując negatywnie lokalizację przedmiotowej inwestycji poinformował m.in., że realizacja planowanej zabudowy mieszkaniowej wielorodzinnej powinna być chroniona przed wszelkimi uciążliwościami, w tym w zakresie hałasu. Organ zaznaczył, że lokalizacja zabudowy mieszkaniowej w sąsiedztwie terenów przemysłowych może doprowadzić do powstania konfliktów społecznych, a także stanowić zagrożenie dla zdrowia przyszłych mieszkańców tego terenu.
Prezydent proponuje jednak radnym podjęcie uchwały, co otworzy drogę do realizacji inwestycji. - Spowoduje to - jak czytamy w uzasadnieniu - zwiększenie oferty lokalowej na obszarze miasta, co z kolei powinno wywołać pozytywne skutki zarówno społeczne jak i gospodarcze. Dlatego w celu poprawy jakości życia mieszkańców oraz możliwości osiedlania się na terenie miasta podjęcie niniejszej uchwały jest w pełni uzasadnione i celowe.
W zakresie ochrony przed hałasem należy w projekcie budowlanym zastosować zabezpieczenia zapewniające odpowiednie standardy akustyczne oraz właściwe i bezpieczne warunki zamieszkania przyszłych mieszkańców na terenie inwestycji mieszkaniowej oraz w mieszkaniach tj. ekrany akustyczne, okna o podwyższonej izolacyjności akustycznej, zieleń izolacyjną.
Planowana inwestycja mieszkaniowa będzie realizowana jako funkcja zgodna z przeznaczeniem dopuszczonym, które nie może stać się przeznaczeniem dominującym. Warunek ten będzie spełniony ponieważ na terenie 3.1.2/23.P1 nadal będzie przeważało przeznaczenie podstawowe – dominujące, czyli tereny zabudowy przemysłowej.
![Zdjęcie w galerii na portalu naszraciborz.pl: Przy Siwonia ma powstać nowe osiedle domów wielorodzinnych [FOTO] wiadomości z regionu](galleries/34178/1571512205siwonia1-.jpg)
![Zdjęcie w galerii na portalu naszraciborz.pl: Przy Siwonia ma powstać nowe osiedle domów wielorodzinnych [FOTO] wiadomości z regionu](galleries/34178/1571512211siwonia2-.jpg)
![Zdjęcie w galerii na portalu naszraciborz.pl: Przy Siwonia ma powstać nowe osiedle domów wielorodzinnych [FOTO] wiadomości z regionu](galleries/34178/1571512216siwonia3-.jpg)
![Zdjęcie w galerii na portalu naszraciborz.pl: Przy Siwonia ma powstać nowe osiedle domów wielorodzinnych [FOTO] wiadomości z regionu](galleries/34178/1571512223siwonia4-.jpg)
![Zdjęcie w galerii na portalu naszraciborz.pl: Przy Siwonia ma powstać nowe osiedle domów wielorodzinnych [FOTO] wiadomości z regionu](galleries/34178/1571512232siwonia5-.jpg)
![Zdjęcie w galerii na portalu naszraciborz.pl: Przy Siwonia ma powstać nowe osiedle domów wielorodzinnych [FOTO] wiadomości z regionu](galleries/34178/1571512240siwonia6-.jpg)
![Zdjęcie w galerii na portalu naszraciborz.pl: Przy Siwonia ma powstać nowe osiedle domów wielorodzinnych [FOTO] wiadomości z regionu](galleries/34178/1571512249siwonia7-.jpg)














![Uroczystość Wszystkich Świętych na cmentarzu Jeruzalem w Raciborzu [FOTO i WIDEO] Uroczystość Wszystkich Świętych na cmentarzu Jeruzalem w Raciborzu [FOTO i WIDEO] - Serwis informacyjny z Raciborza - naszraciborz.pl](photos/_thumbs/mini_1762011176img-9278-.jpg)




































Komentarze (0)
Dodaj komentarz