Remont piwnic Muzeum w Raciborzu zakończony. Powstanie wystawa podziemny Racibórz

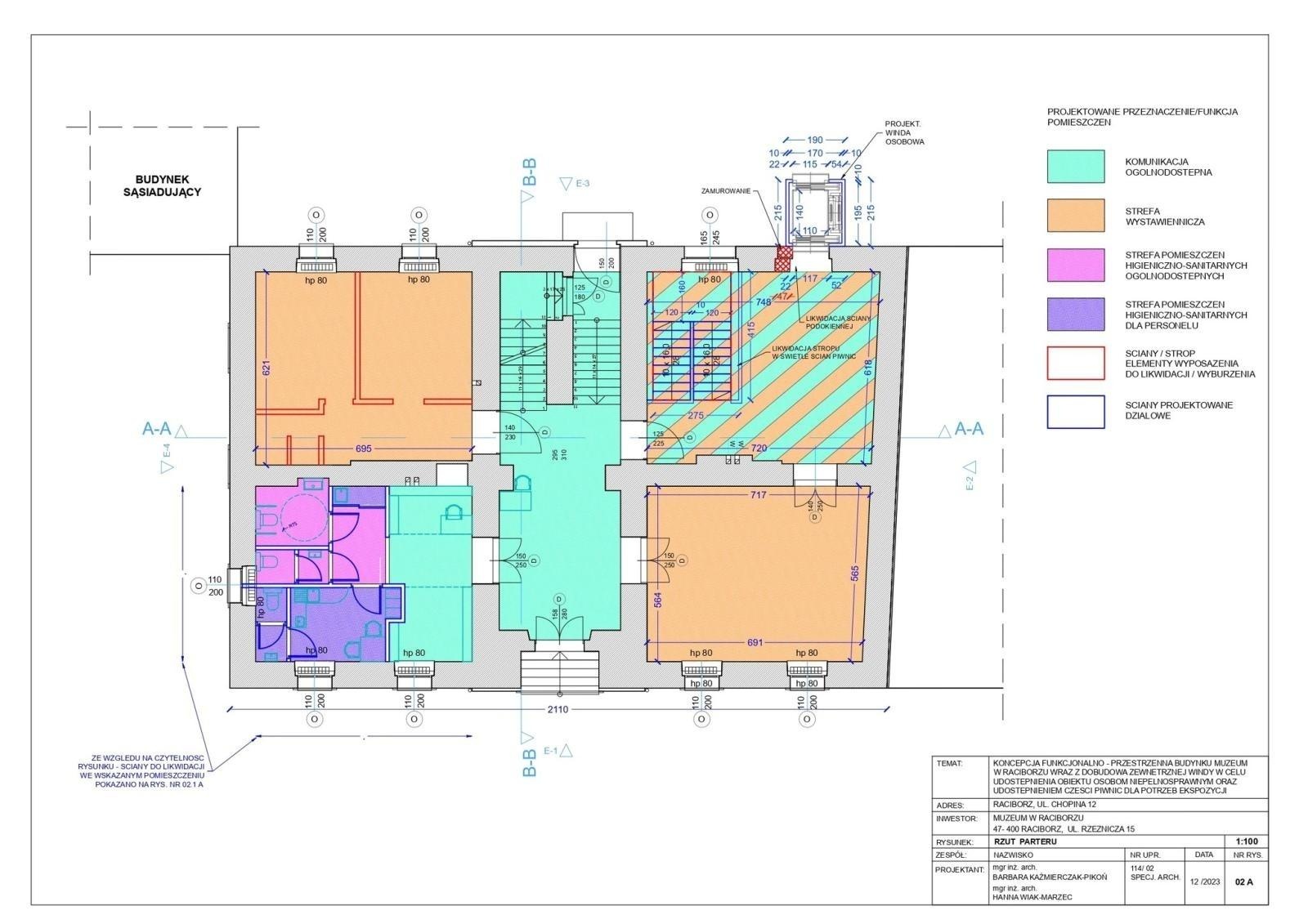
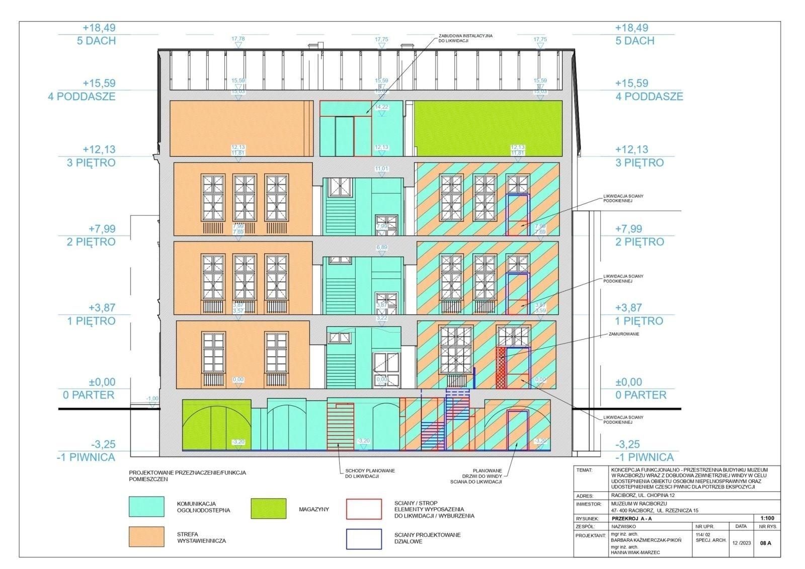
Zakończono prace modernizacyjne w piwnicach budynku Muzeum w Raciborzu przy ul. Chopina 12, przygotowując przestrzeń pod stałą wystawę „Podziemny Racibórz” oraz nowe pomieszczenia magazynowe.
Remont objął piwnice kamienicy wybudowanej po 1841 roku. Prace realizowała firma „Izoserwis. Izolacje Budowlane” na zlecenie Urzędu Miasta Racibórz, w ramach Rządowego Programu Odbudowy Zabytków. Zakres inwestycji obejmował m.in. wykonanie izolacji pionowej i poziomej murów fundamentowych, ułożenie nowych izolowanych posadzek, w tym posadzki ceglanej w części przeznaczonej na ekspozycję, wykonanie tynków oraz montaż drzwi ogniotrwałych oddzielających strefę wystawienniczą od magazynowej.
Zrealizowano także system wentylacji, przebudowę instalacji c.o. i instalacji elektrycznej, a także usunięcie starych, nienormatywnych schodów i budowę nowej klatki schodowej. Piwnice zostały pogłębione, a instalacje grzewcze i wentylacyjne ukryto pod posadzkami. Całość prac przebiegała pod ścisłym nadzorem archeologicznym i konserwatorskim, co pozwoliło na dokonanie kilku istotnych odkryć oraz ustaleń architektonicznych.
Dzięki inwestycji muzeum zyskało nowe przestrzenie ekspozycyjne i magazynowe. Trwają obecnie prace nad scenariuszem nowej wystawy archeologicznej „Podziemny Racibórz”. Jej otwarcie zależne będzie od zakończenia drugiego etapu remontu kamienicy przy ul. Chopina 12, obejmującego termomodernizację obiektu oraz budowę zewnętrznej windy.
Na zrealizowane zadanie miasto pozyskało w lipcu 2023 roku 980 tys. zł w ramach programu Polski Ład. Inwestycję prowadzono w systemie projektuj i buduj.































































Komentarze (0)
Dodaj komentarz