Apartament w Raciborzu na sprzedaż [FOTO]
![Apartament w Raciborzu na sprzedaż [FOTO] Apartament w Raciborzu na sprzedaż [FOTO] - Serwis informacyjny z Raciborza - naszraciborz.pl](img/archiwum-mini.jpg)
PGL „DOM” Sp. z o.o. ogłasza przetarg pisemny na sprzedaż Apartamentu B1 położonego w Raciborzu, przy ulicy Kochanowskiego 4D.
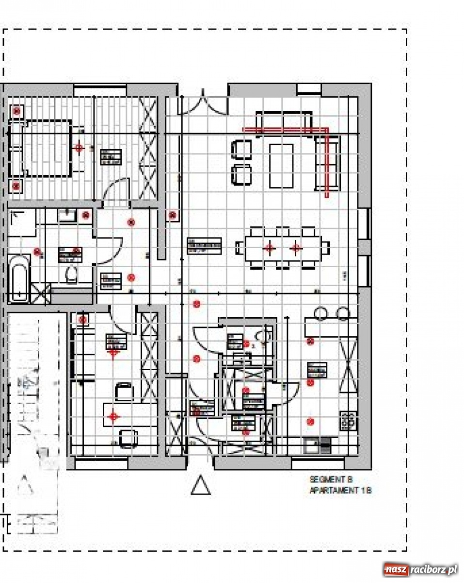
Apartament o powierzchni 112,10 m2 z przestronnym tarasem i terenem zielonym do wyłącznego korzystania usytuowany jest na parterze budynku. Składa się z salonu, kuchni, 2 sypialni, łazienki, toalety, pomieszczenia gospodarczego, korytarza. Do Apartamentu przynależą dwa miejsca postojowe znajdujące się przed wyjściem do budynku.
Cena wywoławcza: 652.859,78 zł, wadium: 33.000 zł
Oferty w zamkniętych kopertach można składać w terminie do dnia 23.04.2019 r. do godz. 15:00 w siedzibie Spółki w Raciborzu przy ul. Bukowej 1 w pokoju nr 9, z dopiskiem: Przetarg - Apartament nr B1. Otwarcie ofert nastąpi 24.04.2020 r. o godz. 12:00. Przystępujący do przetargu zobowiązani są do wpłacenia wadium do dnia 24.04.2020 r. na konto bankowe w ING Bank Śląski o/Racibórz nr 40 1050 1328 1000 0004 0177 2819, przy czym za datę wpłaty uznaje się datę jej wpływu na konto PGL „DOM” Sp. z o.o.
PGL „DOM” Sp. z o.o. zastrzega sobie prawo nie przyjęcia oferty pisemnej w przetargu pisemnym lub przeprowadzenia dodatkowych negocjacji. Szczegółowe informacje dotyczące Apartamentów i warunków ich sprzedaży, jak również możliwości ich oglądnięcia udzielamy pod nr tel. 512 366 595.
OGŁOSZENIE - pobierz [tutaj]
![Zdjęcie w galerii na portalu naszraciborz.pl: Apartament w Raciborzu na sprzedaż [FOTO] wiadomości z regionu](galleries/35575/1586244088image001-.jpg)
![Zdjęcie w galerii na portalu naszraciborz.pl: Apartament w Raciborzu na sprzedaż [FOTO] wiadomości z regionu](galleries/35575/1586244098image002-.jpg)
![Zdjęcie w galerii na portalu naszraciborz.pl: Apartament w Raciborzu na sprzedaż [FOTO] wiadomości z regionu](galleries/35575/1586244110image003-.jpg)
![Zdjęcie w galerii na portalu naszraciborz.pl: Apartament w Raciborzu na sprzedaż [FOTO] wiadomości z regionu](galleries/35575/1586244118image004-.jpg)
![Zdjęcie w galerii na portalu naszraciborz.pl: Apartament w Raciborzu na sprzedaż [FOTO] wiadomości z regionu](galleries/35575/1586244125image005-.jpg)
![Zdjęcie w galerii na portalu naszraciborz.pl: Apartament w Raciborzu na sprzedaż [FOTO] wiadomości z regionu](galleries/35575/1586244133image006-.jpg)
![Zdjęcie w galerii na portalu naszraciborz.pl: Apartament w Raciborzu na sprzedaż [FOTO] wiadomości z regionu](galleries/35575/1586244144image007-.jpg)
![Zdjęcie w galerii na portalu naszraciborz.pl: Apartament w Raciborzu na sprzedaż [FOTO] wiadomości z regionu](galleries/35575/1586244151image008-.jpg)
![Zdjęcie w galerii na portalu naszraciborz.pl: Apartament w Raciborzu na sprzedaż [FOTO] wiadomości z regionu](galleries/35575/1586244162image009-.jpg)
![Zdjęcie w galerii na portalu naszraciborz.pl: Apartament w Raciborzu na sprzedaż [FOTO] wiadomości z regionu](galleries/35575/1586244172image010-.jpg)
![Zdjęcie w galerii na portalu naszraciborz.pl: Apartament w Raciborzu na sprzedaż [FOTO] wiadomości z regionu](galleries/35575/1586244179image011-.jpg)


![Budowa mostu pod Raciborzem. Budowlańcy przekroczyli półmetek [FOTO] Budowa mostu pod Raciborzem. Budowlańcy przekroczyli półmetek [FOTO] - Serwis informacyjny z Raciborza - naszraciborz.pl](photos/_thumbs/mini_176242173306-05112025-budowa-mostu-drogowego-md1-2-.jpg)
















































Komentarze (0)
Komentarze pod tym artykułem zostały zablokowane.