Spotkanie w sprawie zagospodarowania terenów przydomowych Wspólnot Mieszkaniowych

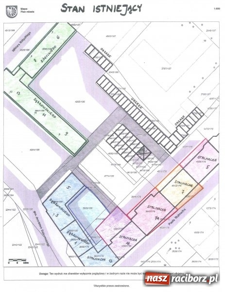
Dnia 13.07.2016 miało miejsce spotkanie, zainicjowane przez Prezydenta Miasta Raciborza, w sprawie zagospodarowania terenów przydomowych Wspólnot Mieszkaniowych nieruchomości przy ul. Stalmacha 5,7,7a,11,13, ul. Dąbrowskiego 1, 3-5, 9-13 oraz ul. Różyckiego 6-8.
W zasobie Miejskiego Zarządu Budynków jest to jeden z największych terenów przydomowych wymagający kompleksowego zagospodarowania. W spotkaniu uczestniczyli Zarządcy oraz Zarządy wszystkich wspólnot mieszkaniowych, władze Miasta oraz przedstawiciele MZB. Dyrektor MZB przedstawił istniejący stan prawny przedmiotowego podwórza, układ funkcjonalny oraz aktualny sposób zagospodarowania. W dalszej części spotkania przedstawiono poglądowo dwa warianty stanowiące propozycje do dyskusji. Propozycja MZB zawiera koncepcję przekazania terenów do konkretnych wspólnot oraz deklarację wyremontowania na koszt Gminy drogi wiodącej, a dróg biegnących wzdłuż poszczególnych budynków z 50 % udziałem Gminy w koszcie remontu. Tereny przejęte przez Wspólnoty mogą być zagospodarowane według ich własnych pomysłów. Warunkiem zaangażowania środków Gminy w zagospodarowanie tego terenu jest jednak deklaracja Wspólnot o przyjęciu terenów przydomowych. Kolejne spotkanie zostało zaplanowane na wrzesień. Spotkania tego typu prowadzone są od paru lat a mają na celu zachęcenie wspólnot mieszkaniowych do przejmowania od Gminy terenów przydomowych i ich zagospodarowania zgodnie z oczekiwaniami mieszkańców danego terenu.










![Seria groźnych interwencji strażaków w powiecie. Pożary i wypadek przy słupie energetycznym [FOTO] Seria groźnych interwencji strażaków w powiecie. Pożary i wypadek przy słupie energetycznym [FOTO] - Serwis informacyjny z Raciborza - naszraciborz.pl](photos/_thumbs/mini_1765871045598333448-900629152302961-443722479592108171-n-2-.jpg)








![Świąteczny Kiermasz w Szkole Podstawowej nr 13 [FOTO] Świąteczny Kiermasz w Szkole Podstawowej nr 13 [FOTO] - Serwis informacyjny z Raciborza - naszraciborz.pl](photos/_thumbs/mini_1765871592image00007-.jpg)
































Komentarze (0)
Aby dodać komentarz musisz być zalogowany