W Raciborzu na Ostrogu powstanie nowe osiedle [WIZUALIZACJE]
![W Raciborzu na Ostrogu powstanie nowe osiedle [WIZUALIZACJE] W Raciborzu na Ostrogu powstanie nowe osiedle [WIZUALIZACJE] - Serwis informacyjny z Raciborza - naszraciborz.pl](img/archiwum-mini.jpg)
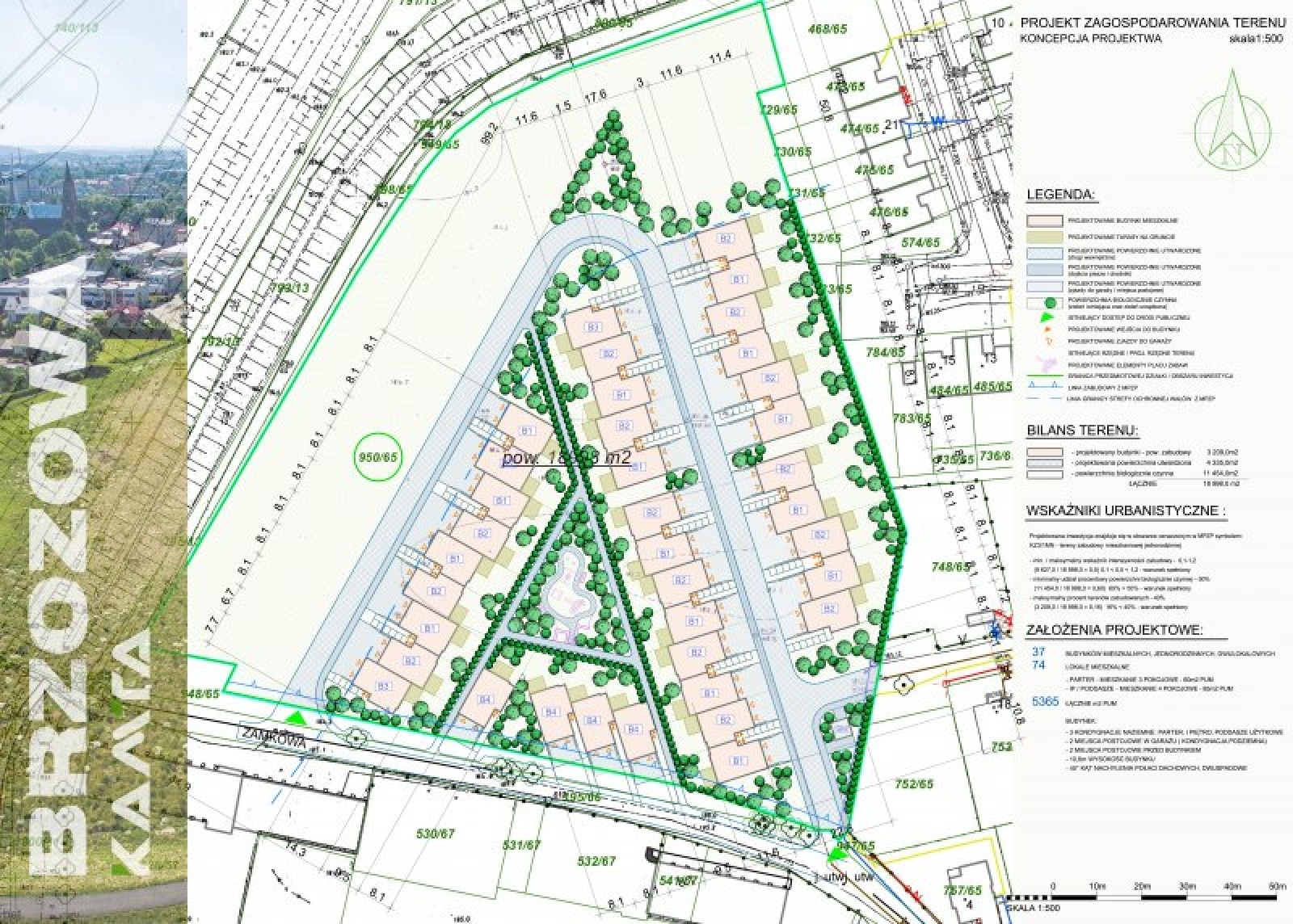
Dziś (25.02.) w Urzędzie Miasta rozstrzygnięty został II pisemny przetarg nieograniczony na sprzedaż działki inwestycyjnej przy ul. Brzozowej o powierzchni 1,8998 ha. Deweloper złożył ofertę nabycia nieruchomości za 2 337 000,00 mln zł brutto, w tym VAT. Nabywcą jest spółka Kamta.
Oczekiwanym przez Gminę Racibórz zagospodarowaniem nieruchomości jest realizacja zabudowy mieszkaniowej, mającej na celu stworzenie osiedla mieszkaniowego wraz z infrastrukturą towarzyszącą. W przetargu, który podzielony został na dwa etapy, magistrat - poza oferowaną przez dewelopera ceną - brał pod uwagę i oceniał koncepcję zagospodarowania tego terenu (dostępna w galerii pod postem). Nabywca zobowiązany jest zrealizować inwestycję w terminie do 5 lat od daty podpisania notarialnej umowy sprzedaży zgodnie z przedstawionymi wizualizacjami, przy czym rozpoczęcie zagospodarowania musi nastąpić w terminie do 3 lat.
Koncepcja zakłada wzniesienie 37 budynków - każdy z dwoma lokalami: na parterze 60 m kw., piętro z poddaszem 85 m kw. oraz miejsca garażowe w podziemiu.
Teren położony jest w ścisłym centrum, w sąsiedztwie starych stajni huzarskich przy wałach, na skraju parku Zamkowego. Bezpośrednie otoczenie stanowi zabudowa jednorodzinna, tereny zielone i sportowo-rekreacyjne (Ośrodek Sportu i Rekreacji). Od strony północnej i zachodniej teren przylega bezpośrednio do obwałowań rzeki Odry.
![Zdjęcie w galerii na portalu naszraciborz.pl: W Raciborzu na Ostrogu powstanie nowe osiedle [WIZUALIZACJE] wiadomości z regionu](galleries/39489/1645792385brzozowa_plansza_1-.jpg)
![Zdjęcie w galerii na portalu naszraciborz.pl: W Raciborzu na Ostrogu powstanie nowe osiedle [WIZUALIZACJE] wiadomości z regionu](galleries/39489/1645792386brzozowa_plansza_2-.jpg)
![Zdjęcie w galerii na portalu naszraciborz.pl: W Raciborzu na Ostrogu powstanie nowe osiedle [WIZUALIZACJE] wiadomości z regionu](galleries/39489/1645792387brzozowa_plansza_3-.jpg)
![Zdjęcie w galerii na portalu naszraciborz.pl: W Raciborzu na Ostrogu powstanie nowe osiedle [WIZUALIZACJE] wiadomości z regionu](galleries/39489/1645792389brzozowa_plansza_4-.jpg)
![Zdjęcie w galerii na portalu naszraciborz.pl: W Raciborzu na Ostrogu powstanie nowe osiedle [WIZUALIZACJE] wiadomości z regionu](galleries/39489/1645792390brzozowa_plansza_5-.jpg)
![Zdjęcie w galerii na portalu naszraciborz.pl: W Raciborzu na Ostrogu powstanie nowe osiedle [WIZUALIZACJE] wiadomości z regionu](galleries/39489/1645792392brzozowa_plansza_6-.jpg)
![Zdjęcie w galerii na portalu naszraciborz.pl: W Raciborzu na Ostrogu powstanie nowe osiedle [WIZUALIZACJE] wiadomości z regionu](galleries/39489/1645792393brzozowa_plansza_7-.jpg)
![Zdjęcie w galerii na portalu naszraciborz.pl: W Raciborzu na Ostrogu powstanie nowe osiedle [WIZUALIZACJE] wiadomości z regionu](galleries/39489/1645792394brzozowa_plansza_8-.jpg)
![Zdjęcie w galerii na portalu naszraciborz.pl: W Raciborzu na Ostrogu powstanie nowe osiedle [WIZUALIZACJE] wiadomości z regionu](galleries/39489/1645792396w1-.jpg)
![Zdjęcie w galerii na portalu naszraciborz.pl: W Raciborzu na Ostrogu powstanie nowe osiedle [WIZUALIZACJE] wiadomości z regionu](galleries/39489/1645792397w2-.jpg)
![Zdjęcie w galerii na portalu naszraciborz.pl: W Raciborzu na Ostrogu powstanie nowe osiedle [WIZUALIZACJE] wiadomości z regionu](galleries/39489/1645792398w3-.jpg)
![Zdjęcie w galerii na portalu naszraciborz.pl: W Raciborzu na Ostrogu powstanie nowe osiedle [WIZUALIZACJE] wiadomości z regionu](galleries/39489/1645792399w4-.jpg)
![Zdjęcie w galerii na portalu naszraciborz.pl: W Raciborzu na Ostrogu powstanie nowe osiedle [WIZUALIZACJE] wiadomości z regionu](galleries/39489/1645792400w5-.jpg)
![Zdjęcie w galerii na portalu naszraciborz.pl: W Raciborzu na Ostrogu powstanie nowe osiedle [WIZUALIZACJE] wiadomości z regionu](galleries/39489/1645792401w6-.jpg)
![Zdjęcie w galerii na portalu naszraciborz.pl: W Raciborzu na Ostrogu powstanie nowe osiedle [WIZUALIZACJE] wiadomości z regionu](galleries/39489/1645792402w7-.jpg)
![Zdjęcie w galerii na portalu naszraciborz.pl: W Raciborzu na Ostrogu powstanie nowe osiedle [WIZUALIZACJE] wiadomości z regionu](galleries/39489/1645792403w8-.jpg)



















![Ciocia od klocków, Pani Karmelarz, Królowa balonów i Art Camp - ferie na Zamku Piastowskim na bogato [PROGRAM] Ciocia od klocków, Pani Karmelarz, Królowa balonów i Art Camp - ferie na Zamku Piastowskim na bogato [PROGRAM] - Serwis informacyjny z Raciborza - naszraciborz.pl](photos/_thumbs/mini_1770138786zrzut-ekranu-2026-02-3-o-18-12-42-.png)

![Strażacy interweniowali przy dwóch zdarzeniach drogowych [RAPORT 998] Strażacy interweniowali przy dwóch zdarzeniach drogowych [RAPORT 998] - Serwis informacyjny z Raciborza - naszraciborz.pl](photos/_thumbs/mini_1694204944img_9402-.jpg)





























Komentarze (1)
Dodaj komentarz