Tak będzie wyglądała szkoła w Kobyli

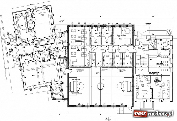
- Czekamy obecnie na informację z ZIT-u (Zintegrowane Inwestycje Terytorialne), gdzie mamy zaplanowane 900 tys. zł na przedszkole, gdyż w budynku ZSP będzie inne niż obecnie rozmieszczenie. W obecnym budynku znajdującym się od strony ulicy Głównej będzie funkcjonowało właśnie przedszkole z osobnym wejściem od strony drogi. W dzisiejszym łączniku powstanie sala gimnastyczna. Natomiast stary budynek z tyłu jest po termomodernizacji, więc jego wygląd zewnętrzny się znacząco nie zmieni, natomiast tu wymieniony zostanie dach, a wewnątrz wymienione zostaną posadzki, wszystkie instalacje. Jak widać jest to naprawdę duży remont - wyjaśnił Grzegorz Niestrój.
Wszystkie procedury mają zostać zamknięte na przełomie maja i czerwca 2014 roku, tak by wykonawca, który zostanie wyłoniony w przetargu mógł wejść na plac budowy już w czerwcu. - Planowane zakończenie robót i oddanie szkoły do użytku planowane jest na koniec lipca 2015 roku - mówił wójt. Inwestycja, choć długo oczekiwana, niesie ze sobą pewne trudności... - Dla uczniów powstaną obiekty zastępcze, gdzie będzie odbywała się nauka. Klasy 1-3 chcemy przenieść do byłego przedszkola w Pogrzebieniu, gdzie obecnie trwają remonty odświeżające obiekt i chcemy już tam dzieci wprowadzić w czerwcu. Natomiast klasy 4-6 będą się uczyły w GOK-u w Kobyli - tłumaczył wójt.
Sisi
fot. UG Kornowac

































![Zamek Piastowski gościł XXVI Mistrzostwa Polski w Armwrestlingu [FOTO i WIDEO] Zamek Piastowski gościł XXVI Mistrzostwa Polski w Armwrestlingu [FOTO i WIDEO] - Serwis informacyjny z Raciborza - naszraciborz.pl](photos/_thumbs/mini_1775033214dsc-6165-duz-y-.jpeg)




![Wielki Czwartek w kościele NSPJ – początek Triduum Paschalnego [FOTO] Wielki Czwartek w kościele NSPJ – początek Triduum Paschalnego [FOTO] - Serwis informacyjny z Raciborza - naszraciborz.pl](photos/_thumbs/mini_1775160715dsc-6260-.jpg)
























Komentarze (0)
Aby dodać komentarz musisz być zalogowany