Centrum przesiadkowe to pomysł ratusza na wykorzystanie środków z UE

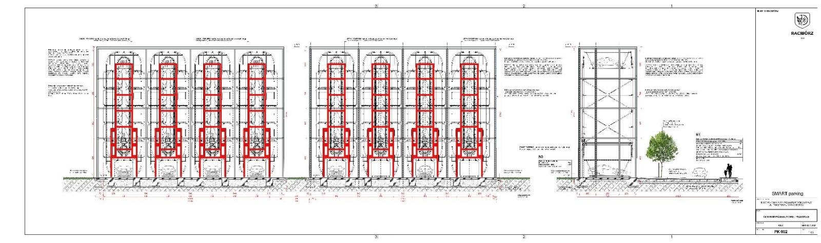
- Planowana realizacja projektu przewidziana jest w latach 2024-2027. Szacunkowy koszt całkowity to 17 395 324,70 PLN, z czego aż 85% pochodzić będzie z Funduszy Europejskich dla Śląskiego na lata 2021-2027, co stanowi kwotę 14 786 026,00 PLN - informuje ratusz. Pod nazwą centrum kryje się wielopoziomowy parking. Ma się znajdować tuż przy dworcu (patrz pierwsze zdjęcie w galerii).
- Dziś przedstawiamy zupełnie nowy sposób myślenia o infrastrukturze i transporcie w Raciborzu. Centrum Przesiadkowe to nie tylko nowa inwestycja, to zmiana filozofii, która przyniesie korzyści raciborzanom i naszemu wspaniałemu miastu na długie lata." - powiedział podczas konferencji prasowej prezydent Dariusz Polowy.
Przedstawił plany budowy Centrum Przesiadkowego w pobliżu dworca PKP, tym samym zaznaczając nowy etap w rozwoju transportowej infrastruktury miasta. Projekt ten znacząco usprawni transport zbiorowy oraz zwiększy udział transportu publicznego.
- Tym projektem Miasto Racibórz nie tylko podnosi jakość swojej infrastruktury transportowej, ale także podejmuje kroki w kierunku zrównoważonego rozwoju, zgodnie ze Strategią Zrównoważonego Rozwoju Transportu do 2030 roku - przekonuje ratusz.
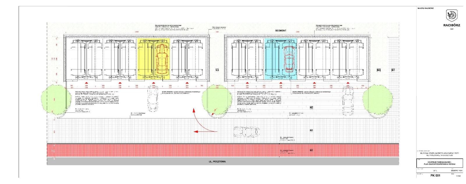
Planowana infrastruktura ma za zadanie usprawnić transport zbiorowy i zintegrować różne formy podróży, a także poprawić komfort podróżowania mieszkańców oraz gości. W skład projektu wchodzą następujące elementy:
• Budowa wielopoziomowego parkingu z bezpośrednim dojściem na peron kolejowy.
• Utworzenie stacji rowerów miejskich wraz z parkingiem dla rowerów.
• Wykonanie miejsc postojowych dla taksówek.
• Budowa nowoczesnego budynku obsługi podróżnych, obejmującego punkt informacyjny, punkt sprzedaży biletów, toalety oraz windę z dostępem do peronu.
• Wdrożenie cyfrowego systemu integrującego transport w formie zabudowanych modułów z interaktywnymi tablicami, ułatwiającego planowanie trasy i zakup jednego biletu na wszystkie rodzaje transportu.
• Zagospodarowanie terenu wokół w formie zieleni (parku) wraz z elementami zielonego dachu.
Realizacja projektu odbywać się będzie we współpracy z Przedsiębiorstwem Komunalnym, Przedsiębiorstwem Komunikacji Samochodowej oraz PKP. Projekt doskonale wpisuje się w długofalowe cele zrównoważonego rozwoju transportu, szczególnie poprzez redukcję natężenia ruchu oraz zwiększenie udziału transportu publicznego w przewozach pasażerskich.
Planowana realizacja projektu przewidziana jest w latach 2024-2027. Szacunkowy koszt całkowity to 17 395 324,70 PLN, z czego aż 85% pochodzić będzie z Funduszy Europejskich dla Śląskiego na lata 2021-2027, co stanowi kwotę 14 786 026,00 PLN.
Centrum Przesiadkowe w Raciborzu to nie tylko inwestycja w infrastrukturę, lecz także inwestycja w lepszą jakość życia mieszkańców i atrakcyjność miasta dla potencjalnych inwestorów oraz turystów.







![Budowa mostu pod Raciborzem. Budowlańcy przekroczyli półmetek [FOTO] Budowa mostu pod Raciborzem. Budowlańcy przekroczyli półmetek [FOTO] - Serwis informacyjny z Raciborza - naszraciborz.pl](photos/_thumbs/mini_176242173306-05112025-budowa-mostu-drogowego-md1-2-.jpg)
















































Komentarze (0)
Dodaj komentarz