Nowe perspektywy dla inwestorów i deweloperów. Racibórz wystawia na sprzedaż atrakcyjne grunty

Miasto Racibórz stawia na rozwój i zaprasza inwestorów do udziału w przetargach na nieruchomości miejskie. W ofercie znalazły się zarówno tereny pod działalność gospodarczą, jak i działki przeznaczone pod zabudowę mieszkaniową. Lokalizacje, dostęp do infrastruktury i korzystne terminy przetargów czynią z tej oferty jedną z ciekawszych propozycji inwestycyjnych w regionie.
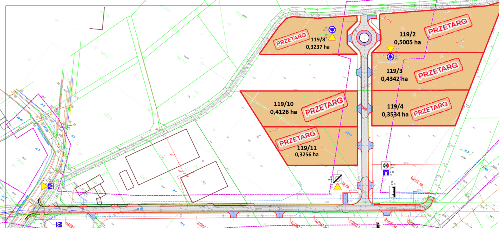
Ul. Mikołowska – przestrzeń dla przemysłu i usług
Na sprzedaż trafiły kompleksy działek położone przy ul. Mikołowskiej, przygotowane z myślą o inwestorach zainteresowanych prowadzeniem działalności produkcyjnej, usługowej lub magazynowej. Nieruchomości te są uzbrojone w niezbędną infrastrukturę techniczną, a lokalizacja w sąsiedztwie ważnych szlaków komunikacyjnych sprzyja rozwojowi działalności gospodarczej. Najbliższe przetargi odbędą się 11 i 25 września.
Ul. Odrodzenia – oferta dla budownictwa mieszkaniowego
Na nowych właścicieli czekają również działki mieszkaniowe o łącznej powierzchni 1,68 ha, zlokalizowane przy ul. Odrodzenia. Położenie w spokojnej okolicy, dobry dojazd oraz sąsiedztwo istniejącej zabudowy jednorodzinnej sprawiają, że oferta ta stanowi atrakcyjną propozycję dla deweloperów. Przetarg zaplanowano na 16 września.
Ul. Bartka Lasoty – kameralna inwestycja w dobrej lokalizacji
Kolejna nieruchomość objęta przetargiem to działka o powierzchni 0,6071 ha przy ul. Bartka Lasoty. Zgodnie z planem miejscowym teren ten przeznaczony jest pod zabudowę mieszkaniową jednorodzinną. Działka doskonale nadaje się do realizacji kameralnego osiedla i może przyciągnąć inwestorów poszukujących terenów o spokojnym, lokalnym charakterze. Termin przetargu to 24 września.
Szczegółowe informacje o przetargach oraz pełna oferta nieruchomości dostępna jest na stronie internetowej miasta: www.raciborz.pl/invest_in_raciborz.











![Szkoła to nie statystyka. Głos społeczności Trzynastki wobec uchwały intencyjnej [WIDEO] Szkoła to nie statystyka. Głos społeczności Trzynastki wobec uchwały intencyjnej [WIDEO] - Serwis informacyjny z Raciborza - naszraciborz.pl](photos/_thumbs/mini_1770058070img-20260202-160423-.jpg)



















![Ciocia od klocków, Pani Karmelarz, Królowa balonów i Art Camp - ferie na Zamku Piastowskim na bogato [PROGRAM] Ciocia od klocków, Pani Karmelarz, Królowa balonów i Art Camp - ferie na Zamku Piastowskim na bogato [PROGRAM] - Serwis informacyjny z Raciborza - naszraciborz.pl](photos/_thumbs/mini_1770138786zrzut-ekranu-2026-02-3-o-18-12-42-.png)























Komentarze (0)
Dodaj komentarz