Ogłoszono przetarg na przebudowę żłobka przy Słonecznej

Pieniądze na inwestycję miasto pozyskało z rządowego programu Maluch+.
To 3 822 484 zł na utworzenie 68 miejsc w rozbudowanym żłobku przy Słonecznej. Oferty w przetargu przyjmowane są do 6 września. Jeśli uda się wyłonić wykonawcę, ten będzie miał 180 dni na realizację zadania od chwili podpisania umowy.
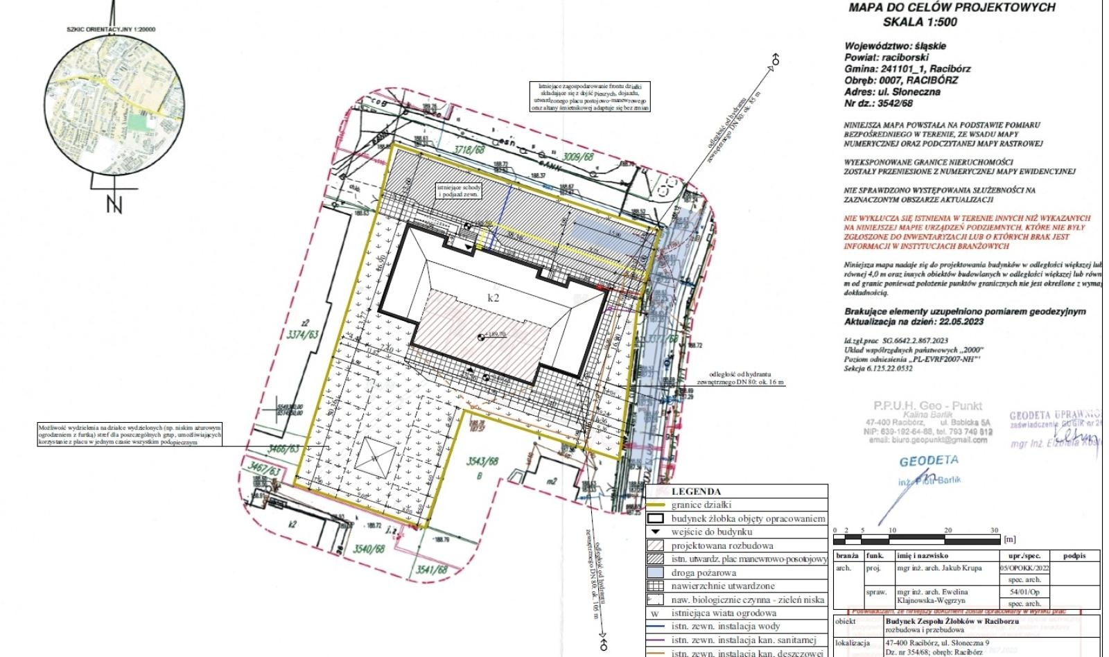
- Projekt obejmuje przebudowę istniejącej części budynku, rozbudowę o część nowoprojektowaną oraz częściowe wyburzenie istniejących, niespełniających obowiązujących przepisów, parterowych dobudówek, których dotychczasowa lokalizacja zostanie objęta zakresem rozbudowy. Wszystkie rozwiązania pokazano na dołączonych rysunkach - czytamy w dokumentacji.
Na poszczególnych poziomach ulokowano:
Piwnica
• Komunikacja,
• Węzeł cieplny,
• Pomieszczenia piwniczne,
Parter
• Strefę wejściową i komunikacji wewnętrznej: wiatrołap, wózkownia, klatka schodowa, winda, przedsionek przeciwpożarowy i korytarze,
• Strefę przeznaczenia podstawowego: 4 sale pobytu dzieci z przynależnymi pomieszczeniami higieniczno-sanitarnymi oraz magazynami, szatnie odzieży dzieci,
• Zaplecze administracyjno-biurowe: gabinet dyrektora, gabinet intendentki, archiwum,
• Zaplecze socjalne: szatnia z przynależnym węzłem sanitarnym, pomieszczenie socjalne pracowników, ogólnodostępne toalety,
• Gabinet logopedy/psychologa
• Pomieszczenia pomocnicze i magazynowe
I piętro
• Strefę komunikacji wewnętrznej: klatka schodowa, winda, przedsionek przeciwpożarowy i korytarze,
• Strefę przeznaczenia podstawowego: 4 sale pobytu dzieci z przynależnymi pomieszczeniami higieniczno-sanitarnymi oraz magazynami, szatnie odzieży dzieci,
• Kuchnia z zapleczem magazynowym i pomieszczeniami pomocniczymi,
• Zaplecze socjalne pracowników kuchni: szatnia z przynależnym węzłem sanitarnym oraz częścią socjalną pracowników, ogólnodostępne toalety,
• Pomieszczenia pomocnicze i magazynowe











![Wielki finał Bajkowego Zamku 2025 – żywa szopka, mikołajkowe fire show i przejażdżki bryczkami [PROGRAM] Wielki finał Bajkowego Zamku 2025 – żywa szopka, mikołajkowe fire show i przejażdżki bryczkami [PROGRAM] - Serwis informacyjny z Raciborza - naszraciborz.pl](photos/_thumbs/mini_1765356281final-bajkowego-.png)
![Wybrano najlepszy raciborski biznesplan. Wygrali studenci ANS [FOTO i WIDEO] Wybrano najlepszy raciborski biznesplan. Wygrali studenci ANS [FOTO i WIDEO] - Serwis informacyjny z Raciborza - naszraciborz.pl](photos/_thumbs/mini_1765394259img-1624-.jpg)

















![I LO im. Jana Kasprowicza świętuje 80-lecie – gala jubileuszowa i spotkania w szkole [FOTO i WIDEO] I LO im. Jana Kasprowicza świętuje 80-lecie – gala jubileuszowa i spotkania w szkole [FOTO i WIDEO] - Serwis informacyjny z Raciborza - naszraciborz.pl](photos/_thumbs/mini_1765557622jubileusz80lo1-570-kopia-.jpg)






















Komentarze (0)
Dodaj komentarz